Residential

2227 Jefferson Circle, Little River

$400,000

Bedroom 2 bedrooms
Bathroom 2 baths

  • MLS #: 2608941
  • Address: 2227 Jefferson Circle, Little River, SC 29566
  • Date Listed: 4/6/2026
  • Days on Market: 0
  • SQFT: 1820
  • Acres: 0.13
  • Restrictions: Covenants/Restrictions Disclosure,Seller Disclosure
  • Stipulations: None
  • Subdivision: Windjammer Village - LR

Location Location

Agent Comments Agent Comments
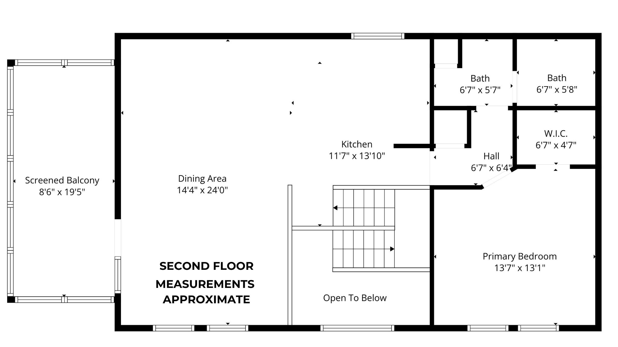
ICW Community and No COOKIE-CUTTER homes here! Windjammer Village in Little River is one of the most charming ICW neighborhoods in the area and as an added bonus, it neighbors the serene and peaceful - Vereen Memorial Gardens. Travel through the gated entrance into a space like no other. Hills and valleys, mature trees, winding roads with cul-de-sacs and circles filled with custom built, unique homes at every turn. This neighborhood sits along the Intracoastal Waterway and features boat access to the ICW, a clubhouse, outdoor pool, pickle ball courts, and RV and boat storage. It's an active community with monthly planned events. This Mediterranean style home is ready to welcome you to all that Windjammer has to offer and features stucco exterior, double entry doors, and decorative tile throughout. The first floor has a flex space perfect for recreation/game room, media room or second living area. The guest bedroom and bathroom are also on the first floor - allowing for privacy. Upstairs you find a beautiful open floor plan, three-season balcony, and primary bedroom and bathroom which features a lovely walk-in tiled shower. New LVP floors run throughout the entire second floor creating a seamless flow and the light filling the space just adds to the expansiveness of this area. The kitchen has ample wood cabinets, decorative tile, new granite counters, new cooktop and new wall oven. If you are looking for a home that makes a statement, this is the one. Attic space is equipped with a motorized Attic Lift making getting your items stowed away in the large floored attic a breeze. Home has a separate vacant lot included and has commercial grade stairs with a storm shelter under them. From the moment you enter Windjammer, to pulling up to this home and stepping inside, you're going to be swept away. Ask for a list of all the updates - Roof 2025, HVAC 2018, Water Heater 2021. Little River is home to the Blue Crab Festival, Shrimp Festival, Patriot Festival, and the Little River Waterfront which features waterfront restaurants and Big M Casino. Windjammer is perfectly situated so you can enjoy Cherry Grove Beach, North Myrtle Beach, Calabash, Sunset Beach, and Ocean Isle Beach with just a short drive. Schedule your private tour today before this beauty is claimed by another!

Amenities Amenities
  • Cooktop
  • Dishwasher
  • Dryer
  • Washer

Interior Features Interior Features
  • Cool System: Central Air
  • Heat System: Central, Electric, Forced Air
  • Floors: Luxury Vinyl, Luxury VinylPlank
  • Interior: Ceiling Fan(s), Linen Closet, Other, Split Bedrooms, Skylights, Separate Shower, Window Treatments, Breakfast Bar, Bedroom on Main Level, Entrance Foyer, Kitchen Island, Solid Surface Counters

Exterior Features Exterior Features
  • Parking: Attached, Garage, One Space, Boat, Garage Door Opener, RV Access/Parking
  • Exterior: Balcony, Sprinkler/Irrigation, Patio

Additional Features Additional Features
  • County: Horry
  • Property Type: Detached
  • Tax Number: 2147483647
  • Water/Sewer: Cable Available, Electricity Available, Other, Phone Available, Sewer Available, Underground Utilities, Water Available
  • Year Built: 1984