Residential

1001 Oakley St., Georgetown

$449,990

Bedroom 4 bedrooms
Full Bathroom 4 full baths
Half Baths 3 half baths

  • MLS #: 2604700
  • Address: 1001 Oakley St., Georgetown, SC 29440
  • Date Listed: 2/23/2026
  • Days on Market: 66
  • SQFT: 2154
  • Acres: 0.41
  • Restrictions: Covenants/Restrictions Disclosure
  • Stipulations: None
  • Subdivision: Not within a Subdivision

Location Location

Agent Comments Agent Comments
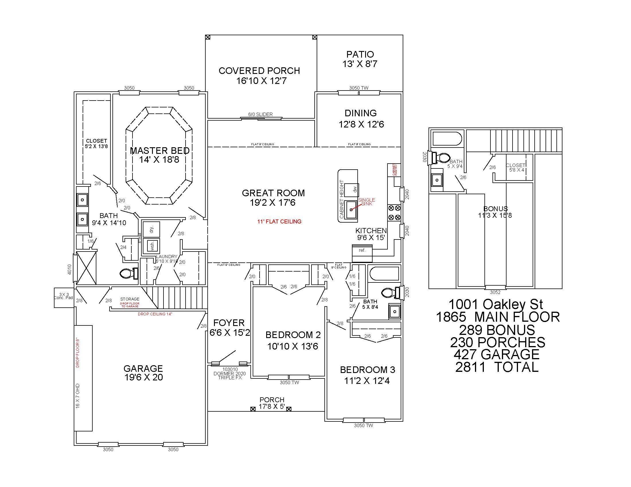
***Home is Under Construction*** This Sulivan model is a beautifully designed 1.5-story home offering 3 bedrooms and 2 bathrooms on the main level, plus a spacious bonus/bedroom with a full bath above the garage - totaling approximately 2,154 heated sq. ft. of thoughtfully planned living space. This open-concept floor plan includes a spacious kitchen with upgraded cabinets, granite countertops, a breakfast bar, pantry, and stainless steel appliances all overlooking the living area and a dining room, perfect for entertaining. The master bath features a tile walk-in shower and double sinks. Additional highlights include waterproof laminate flooring throughout the entire home, a covered front and rear porch, and a rear patio. This home sits on a generous 0..41-acre lot with no HOA, and comes standard with the efficiency and convenience of natural gas, including gas heat, a gas range, and a Rinnai tankless water heater.• Ion Gray Smart Thermostats – Please make sure this feature is included in your Public Remarks whenever you are highlighting home features. "Painted and trimmed 2-car garage featuring a steel-reinforced garage door with LiftMaster™ 3/4 HP chain-drive opener, built-in camera, and MyQ® Wi-Fi connectivity for mobile operation." Conveniently located just minutes from the historic Georgetown Harborwalk, shopping, dining, and waterfront attractions are never far from home. Building lifestyles for over 40 years, we remain the premier home builder along the Grand Strand. We’re proud to be the 2021, 2022, 2023, and 2024 winners of both WMBF News’ and The Sun News Best Home Builder awards, and the 2025 winner of The Sun News Best Home Builder. 2023, 2024, 2025, & 2026 winners of the Myrtle Beach Herald's Best Residential Real Estate Developer award, and 2024, 2025, & 2026 winners of The Horry Independent’s Best Residential Real Estate Developer and Best New Home Builder award. We began and remain in the Grand Strand, and we want you to experience the local pride we build today and every day in Horry and Georgetown Counties. Photos are stock photos of similar Plans. Seller is SC Real Estate Agent.

Amenities Amenities
  • Dishwasher
  • Disposal
  • Microwave
  • Range

Interior Features Interior Features
  • Cool System: Central Air
  • Heat System: Central, Electric, Forced Air, Gas
  • Floors: Carpet, Luxury Vinyl, Luxury VinylPlank
  • Interior: Tray Ceiling(s), Ceiling Fan(s), Dual Sinks, Linen Closet, Main Level Primary, Split Bedrooms, Separate Shower, Vanity, Walk-In Closet(s), Breakfast Bar, Bedroom on Main Level, Entrance Foyer, Stainless Steel Appliances, Solid Surface Counters

Exterior Features Exterior Features
  • Parking: Attached, Two Car Garage, Garage, Garage Door Opener
  • Exterior: Porch, Patio

Additional Features Additional Features
  • County: Georgetown
  • Property Type: Detached
  • Tax Number: 05-0047-009-00-00
  • Waterfront Features: Pond
  • Water/Sewer: Cable Available, Electricity Available, Natural Gas Available, Other, Phone Available, Sewer Available, Underground Utilities, Water Available
  • Year Built: 2026