Residential

1505 Crooked Hook Rd., North Myrtle Beach

$639,775

Bedroom 3 bedrooms
Bathroom 3 baths

  • MLS #: 2528062
  • Address: 1505 Crooked Hook Rd., North Myrtle Beach, SC 29582
  • Date Listed: 11/22/2025
  • Days on Market: 169
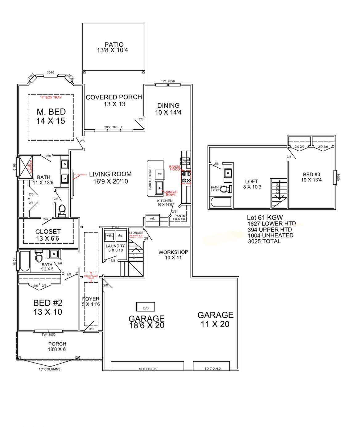
  • SQFT: 2021
  • Acres: 0.28
  • Restrictions: Covenants/Restrictions Disclosure
  • Stipulations: None
  • Subdivision: Kingswood On The Waterway

Location Location

Agent Comments Agent Comments
Under Construction! Welcome to the wonderful "Indigo" floor plan featuring 3 spacious bedrooms, 3 luxurious bathrooms, with a HUGE THREE-car garage + a workshop area, perfectly situated on a Large homesite in a prestigious Intracoastal Waterfront community in the heart of North Myrtle Beach & Just a Golf Cart ride to the Beach! Step into a bright and airy open-concept living space, thoughtfully designed with contemporary finishes and high-end fixtures throughout. The gourmet kitchen boasts state-of-the-art appliances, quartz countertops, a large center Island, natural gas range and ample cabinetry perfect for culinary adventures and entertaining guests. Relax in your luxurious main floor master suite, featuring a spacious bedroom, walk-in closet, and en-suite bathroom, with dual sinks and a gorgeous zero entry tiled shower. Located just moments away from renowned golf courses, shopping, and a variety of local dining options, every day brings a new adventure. Enjoy easy access to exciting attractions and entertainment, ensuring there's always something to explore. Public Beach Access, Central Park boasting basketball, tennis, pickleball courts, and more, as well as the NMB Aquatic and Fitness Center are all conveniently located less than 5 minutes away. Kingswood on the Waterway offers the perfect blend of relaxation and convenience. Don't miss out on this incredible opportunity to live in one of North Myrtle Beach's most desirable locations! Building lifestyles for over 40 years, we remain the premier home builder along the Grand Strand. We’re proud to be the 2021, 2022, 2023, and 2024 winners of both WMBF News’ and The Sun News Best Home Builder awards, and the 2025 winner of The Sun News Best Home Builder. 2023, 2024, 2025, & 2026 winners of the Myrtle Beach Herald's Best Residential Real Estate Developer award, and 2024, 2025, & 2026 winners of The Horry Independent’s Best Residential Real Estate Developer and Best New Home Builder award. We began and remain in the Grand Strand, and we want you to experience the local pride we build today and every day in Horry and Georgetown Counties

Amenities Amenities
  • Dishwasher
  • Disposal
  • Microwave
  • Range

Interior Features Interior Features
  • Cool System: Central Air
  • Heat System: Forced Air, Gas
  • Floors: Carpet, Luxury Vinyl, Luxury VinylPlank
  • Interior: Dual Sinks, Main Level Primary, Split Bedrooms, Separate Shower, Walk-In Closet(s), Bedroom on Main Level, Entrance Foyer, Kitchen Island, Stainless Steel Appliances, Solid Surface Counters

Exterior Features Exterior Features
  • Parking: Attached, Garage, Three Car Garage, Garage Door Opener
  • Exterior: Sprinkler/Irrigation, Porch, Patio

Additional Features Additional Features
  • County: Horry
  • Property Type: Detached
  • Tax Number: 2147483647
  • Water/Sewer: Cable Available, Electricity Available, Natural Gas Available, Phone Available, Sewer Available, Underground Utilities, Water Available
  • Year Built: 2026