Residential

1005 Cedar St., Marion

$159,900

Bedroom 3 bedrooms
Full Bathroom 1 full baths
Half Baths 1 half baths

  • MLS #: 2523484
  • Address: 1005 Cedar St., Marion, SC 29571
  • Date Listed: 9/25/2025
  • Days on Market: 217
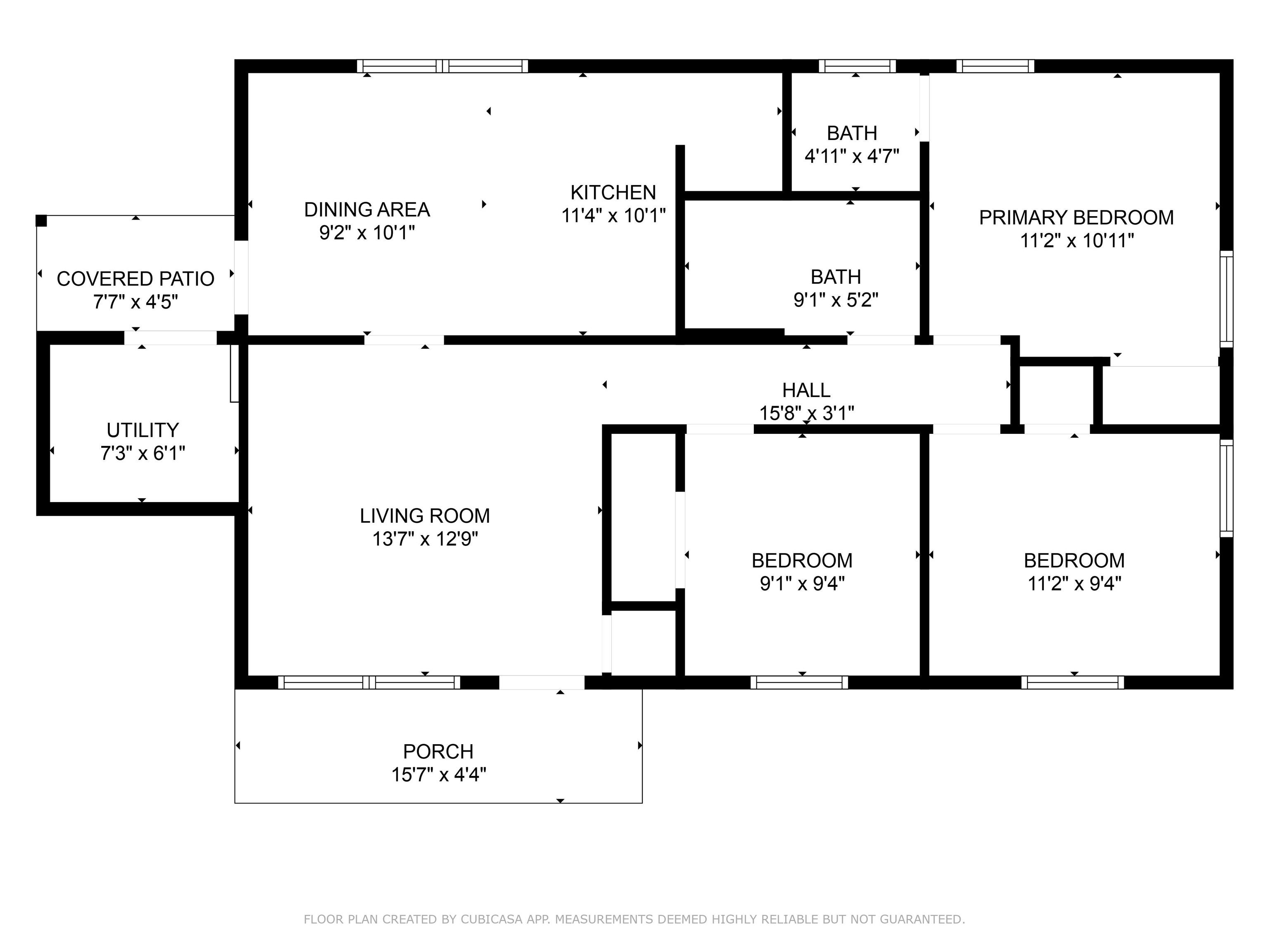
  • SQFT: 967
  • Acres: 0.22
  • Stipulations: None
  • Subdivision: Outside of Horry & Georgetown counties

Location Location

Agent Comments Agent Comments
Newly renovated brick home located in the heart of Marion. This 3 bedroom, 1.5 bath home offers nearly 1,000 square feet of completely updated living space. Renovations include a new roof, windows, HVAC, kitchen with granite countertops and cabinets, updated baths, and fresh paint throughout. The property is situated on a quiet dead-end street with no through traffic, no HOA, and minimal maintenance. A finished storage area accommodates the laundry. Move-in ready and convenient to everything Marion has to offer.

Amenities Amenities
  • Microwave

Interior Features Interior Features
  • Cool System: Central Air
  • Heat System: Central, Electric
  • Floors: Luxury Vinyl, Luxury VinylPlank

Exterior Features Exterior Features
  • Parking: None

Additional Features Additional Features
  • County: Marion
  • Property Type: Detached
  • Tax Number: 509-08-07-000-000
  • Water/Sewer: Electricity Available, Sewer Available, Water Available
  • Year Built: 1975