Residential

1194 Rainbow Dr., Loris

$175,000

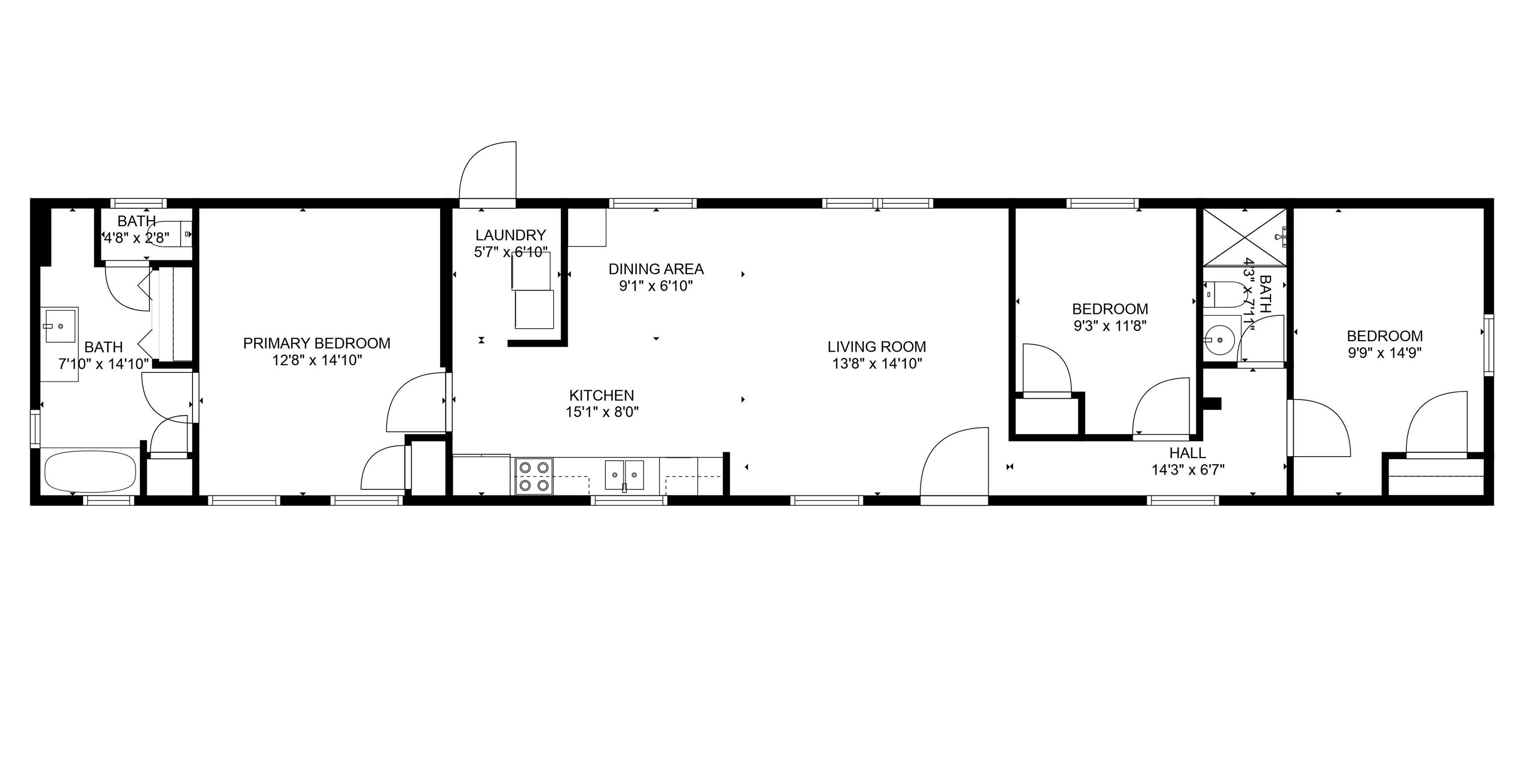
Bedroom 3 bedrooms
Bathroom 2 baths

  • MLS #: 2523305
  • Address: 1194 Rainbow Dr., Loris, SC 29569
  • Date Listed: 9/23/2025
  • Days on Market: 174
  • SQFT: 1099
  • Acres: 0.69
  • Stipulations: None
  • Subdivision: Sandy Acres - Loris

Location Location

Agent Comments Agent Comments
Nice remodeled 3-bedroom, 2-bath singlewide home situated on nearly an acre in a quiet country setting, just a short drive to the beach. This home features luxury vinyl plank flooring, updated bathrooms with tile finishes, and energy-efficient LED lighting throughout. Additional highlights include a 200 sq. ft. storage shed and full RV hookups with electric, water, and septic connection. No HOA fees and plenty of privacy—perfect for those who want space while staying close to everything the coast has to offer. Motivated seller will consider all offers. Schedule your showing today and see the potential this home has to offer! Buyer is responsible for verifying all measurements.

Exterior Features Exterior Features
  • Parking: None

Additional Features Additional Features
  • County: Horry
  • Property Type: Mobile Home
  • Tax Number: 2147483647
  • Water/Sewer: Electricity Available, Septic Available, Water Available
  • Year Built: 1995