Residential

830 Whispering Pine Ct., Myrtle Beach

$379,900

Bedroom 3 bedrooms
Full Bathroom 2 full baths
Half Baths 1 half baths

  • MLS #: 2521973
  • Address: 830 Whispering Pine Ct., Myrtle Beach, SC 29577
  • Date Listed: 9/7/2025
  • Days on Market: 220
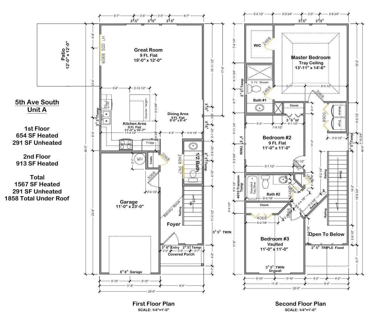
  • SQFT: 1567
  • Acres: 0.11
  • Stipulations: None
  • Subdivision: Not within a Subdivision

Location Location

Agent Comments Agent Comments
Brand New Construction – Prime Myrtle Beach Location! Offering Seller Credit at Closing! Reach out for more details! Beautiful new construction home in a 6 Home development, located just 4 minutes by golf cart to the beach! 1,858 Total Sqft Featuring 3 bedrooms, 2.5 baths, a spacious open floor plan, and upgraded finishes throughout, this home is designed for comfort and style. Highlights include: Luxury flooring throughout Premium Counter Tops Tile Bathrooms and Shower Dining area and second-floor laundry Attached garage Pre-selling now! Estimated completion: Q1 2026. Don’t miss this opportunity to own a brand-new home or investment property in the heart of Myrtle Beach! Owner is a licensed real estate professional. Images are artist renderings; finishes and colors may vary.

Amenities Amenities
  • Dishwasher
  • Disposal
  • Microwave
  • Range

Interior Features Interior Features
  • Heat System: Central, Electric, Forced Air
  • Floors: Luxury Vinyl, Luxury VinylPlank, Tile
  • Interior: Ceiling Fan(s), Dual Sinks, Linen Closet, Separate Shower, Walk-In Closet(s), Entrance Foyer, Kitchen Island, Stainless Steel Appliances, Solid Surface Counters

Exterior Features Exterior Features
  • Parking: Attached, Garage, One Space, Garage Door Opener
  • Exterior: Patio

Additional Features Additional Features
  • County: Horry
  • Property Type: Detached
  • Tax Number: 2147483647
  • Year Built: 2026