Residential

1017 Menorca Ct., Little River

$331,900

Bedroom 2 bedrooms
Bathroom 2 baths

  • MLS #: 2521812
  • Address: 1017 Menorca Ct., Little River, SC 29566
  • Date Listed: 9/6/2025
  • Days on Market: 217
  • SQFT: 1324
  • Restrictions: Covenants/Restrictions Disclosure
  • Stipulations: None
  • Subdivision: BRIDGEWATER VILLAS

Location Location

Agent Comments Agent Comments
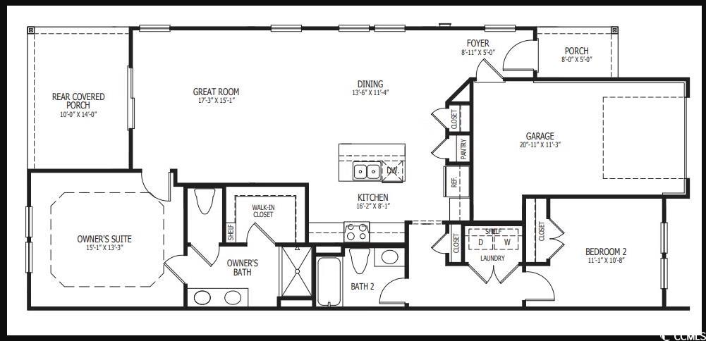
As you enter through the foyer, a door to the garage is conveniently located to your left. Continuing through the home, you’ll discover a spacious kitchen featuring a beautiful island—perfect for hosting holiday gatherings. The kitchen is equipped with a MOEN brushed nickel faucet and a built-in soap dispenser, adding both style and functionality. Prepare delicious meals on your natural gas stove and enjoy memorable family dinners. To the left of the kitchen, a hallway leads to a bedroom at the end, complete with a walk-in closet on your left. On the right, you’ll find a full bathroom with a tub, equipped with elegant MOEN brushed nickel bath accessories and faucets for a modern touch. Moving further into the home, the great room invites you to relax after a long day. Cozy up and enjoy your favorite shows in this welcoming space. But the comfort doesn’t end there! At the rear of the house, the Owner's Suite awaits—a private retreat with an attached bathroom, walk-in closet, and an enclosed toilet room. The bathroom continues the theme of sophistication with MOEN brushed nickel bath accessories and faucets. Welcome to your new life in The Bayside!

Amenities Amenities
  • Dishwasher
  • Disposal
  • Microwave
  • Range

Interior Features Interior Features
  • Cool System: Central Air
  • Heat System: Central, Gas
  • Floors: Carpet, Luxury Vinyl, Luxury VinylPlank
  • Interior: Tray Ceiling(s), Dual Sinks, Main Level Primary, Split Bedrooms, Separate Shower, Walk-In Closet(s), Bedroom on Main Level, Entrance Foyer, Kitchen Island, Stainless Steel Appliances, Solid Surface Counters

Exterior Features Exterior Features
  • Parking: One Car Garage, Private, Garage Door Opener
  • Exterior: Porch

Additional Features Additional Features
  • County: Horry
  • Property Type: Condominium
  • Tax Number: 2147483647
  • Water/Sewer: Electricity Available, Natural Gas Available, Water Available
  • Year Built: 2025