Search
Prev
Next
Residential

TBD 1 Winterberry Ct, Conway

$224,900

Bedroom 3 bedrooms
Bathroom 2 baths

  • MLS #: 2506977
  • Address: TBD 1 Winterberry Ct, Conway, SC 29526
  • Date Listed: 3/20/2025
  • Days on Market: 406
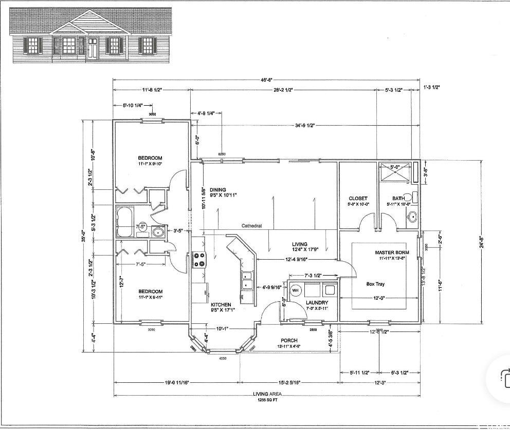
  • SQFT: 1255
  • Acres: 0.4
  • Stipulations: None
  • Subdivision: Not within a Subdivision

Location Location

Agent Comments Agent Comments
Large .40 acre size lots with no HOA and No Deed Restrictions. New Homes, Builder WILL Customize. The Pam Plan features relaxing front porch, entry foyer, open floor plan, spacious living room has vaulted ceiling and with ceiling fan. Large open kitchen has solid wood cabinets with crown molding, stainless steel appliances (microwave, smooth top stove, dishwasher). Split bedrooms-Main bedroom suite has tray ceiling with ceiling fan, huge walk-in closet. The large bathroom has raised height vanity, 5' walk in shower. Guest bedrooms and bath on the opposite side of the home, with a hall closet and linen closet for extra storage. Convenient location, close to Hwy 22. Square footage is approximate and not guaranteed. Buyer is responsible for verification.

Interior Features Interior Features
  • Floors: Carpet, Vinyl
  • Interior: Attic, Tray Ceiling(s), Ceiling Fan(s), Pull Down Attic Stairs, Permanent Attic Stairs, Split Bedrooms, Stainless Steel Appliances

Exterior Features Exterior Features
  • Parking: Driveway, Boat, RV Access/Parking
  • Exterior: Patio

Additional Features Additional Features
  • County: Horry
  • Property Type: Detached
  • Tax Number: 25011010tbd
  • Water/Sewer: Septic Available
  • Year Built: 2025