Search
Prev
Next
Land

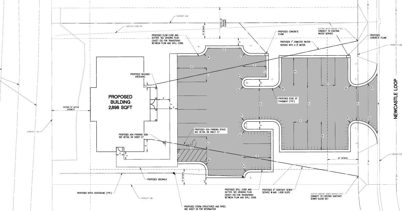
3045 New Castle Loop, Myrtle Beach

$139,000

Bedroom bedrooms

  • MLS #: 2501154
  • Address: 3045 New Castle Loop, Myrtle Beach, SC 29588
  • Date Listed: 1/15/2025
  • Days on Market: 470
  • Acres: 0.49
  • Restrictions: Covenants/Restrictions Disclosure
  • Subdivision: Queens Harbour

Location Location

Agent Comments Agent Comments
Discover an exceptional opportunity for a business in a desirable area of Myrtle Beach! This expansive commercial lot, perfectly situated in a high-traffic area, is ideal for offices, urgent care or doctor's office, service businesses or mixed use. Being so close to the Queen's Harbour and Belle Mer housing communities, there are tons of potential clients near this lot. Key Features: Prime Location: Centrally located with easy access to major highways, residential communities, and shopping. Lot Size: Generous acreage providing flexibility for various building configurations. Zoning: Commercially zoned to accommodate a wide range of business ventures. Visibility: High visibility and exposure, making it perfect for businesses seeking strong foot and vehicle traffic. Utilities: Site is connectable to essential utilities, ensuring a seamless development process. Myrtle Beach’s vibrant economy, booming tourism, and growing population ensure a strong return on investment. Don’t Miss Out! Opportunities like this are rare. Contact us today for more information or for directions. *Listing Agent is related to the owner of the company that is selling the property.

Additional Features Additional Features
  • County: Horry
  • Tax Number: 2147483647
  • Water/Sewer: Electricity Available, Phone Available, Sewer Available, Underground Utilities, Water Available