Search
Prev
Next
Land

TBD Highway 707, Myrtle Beach

$4,500,000

Bedroom bedrooms

  • MLS #: 2317405
  • Address: TBD Highway 707, Myrtle Beach, SC 29588
  • Date Listed: 8/22/2023
  • Days on Market: 993
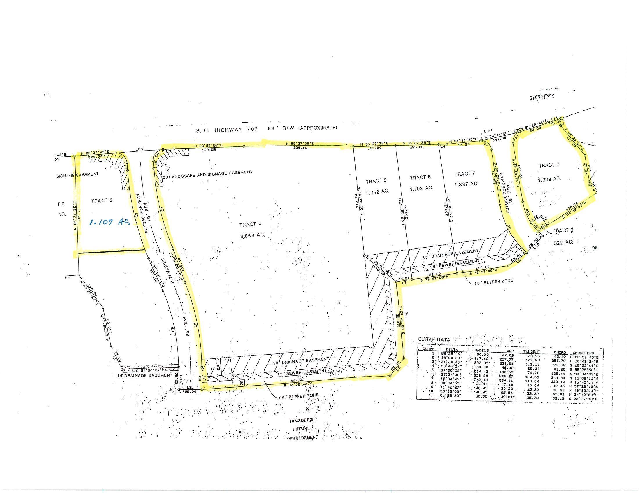
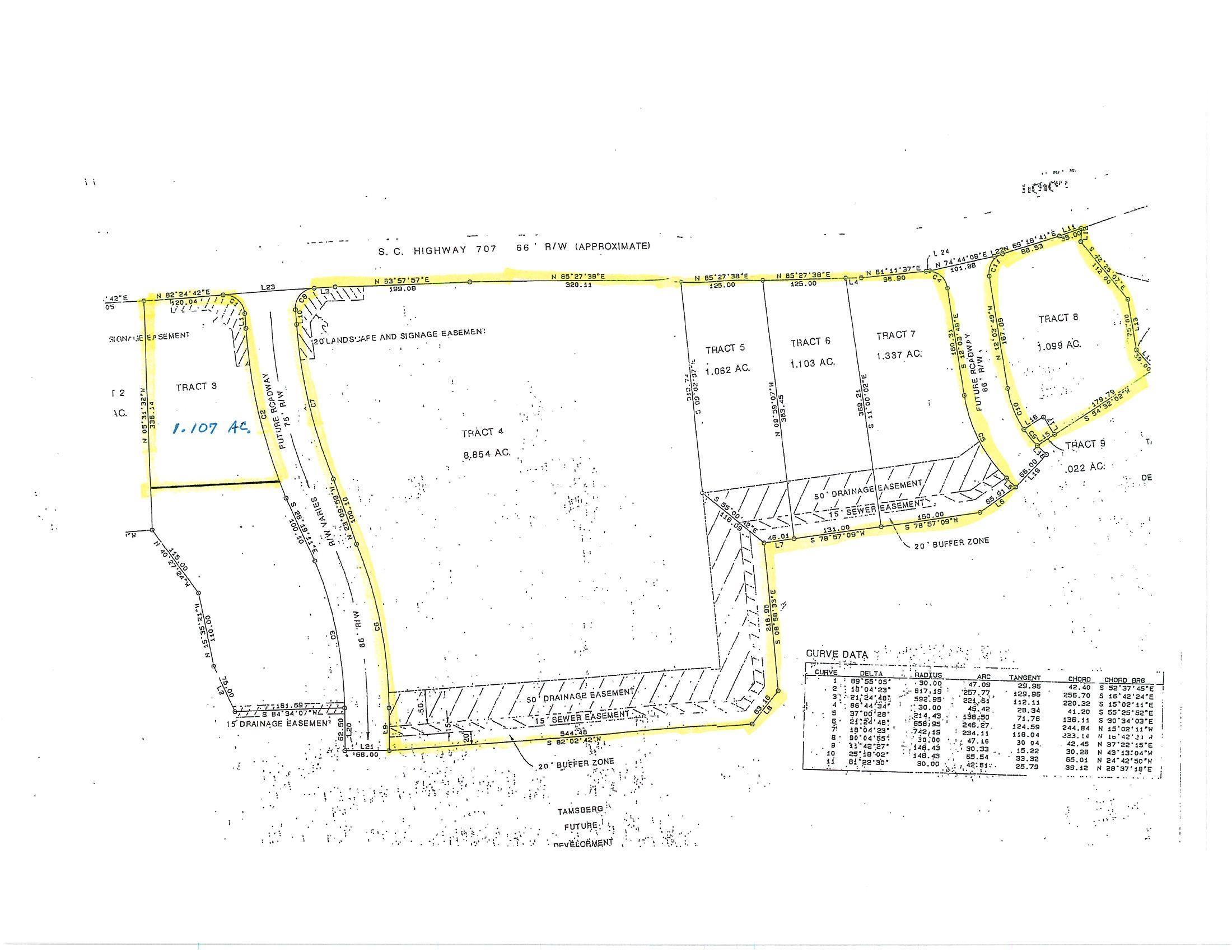
  • Acres: 15
  • Subdivision: Not within a Subdivision

Location Location

Agent Comments Agent Comments
Prime 15-acre commercial development opportunity located along the rapidly growing Highway 707 corridor in the Myrtle Beach and Socastee area. This expansive property offers exceptional visibility, high traffic counts, and convenient access to major highways, schools, neighborhoods, and coastal attractions. Property Highlights Location: Highway 707, Myrtle Beach/Socastee, SC Acreage: 15 acres of prime, level, and buildable land Zoning: HC – Highway Commercial Frontage: Excellent road frontage on Highway 707 with easy ingress and egress Utilities: Public water, sewer, and electricity available at the road Topography: Mostly cleared and ready for development Nearby Landmarks: Close to Highway 31, Market Common, Coastal Carolina University, and Myrtle Beach International Airport Investment Potential Highway 707 is one of the fastest-developing corridors in Horry County, with continuous residential growth and expanding commercial infrastructure. This 15-acre HC-zoned property is ideal for retail centers, office complexes, restaurants, service businesses, or mixed-use commercial projects. Key Advantages High visibility and daily traffic exposure Proximity to established neighborhoods and new subdivisions Minutes from beaches, shopping, dining, and entertainment Strong local economy and population growth

Additional Features Additional Features
  • County: Horry
  • Tax Number: 2147483647